Produs - HR-201D-15
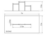
Stand de fitness dublu HR201D (înălțime de cădere 1,5 m)
Solicitați prețul
Stand de fitness dublu HR201D (înălțime de cădere 1,5 m).
cs
sk
de
en
hu
lt


