Leagăn cu lanț cu două locuri RH6211KR - roșu (înălțime liberă 1,5 m)
Cod produs: RH-6211KR-15
Leagăn cu lanț cu două locuri RH6211K - metal (înălțime liberă 1,5 m) - oferim trei variante de culori pentru structura de susținere - roșu, albastru și maro. Mai multe informaţii
Alegeți opțiunea de culoare
Specificații tehnice
| Cod produs: | RH-6211KR-15 |
|---|---|
| Vârsta recomandată: | 2-15 ani |
| Înălţime de cădere liberă: | 1,5 m |
| Număr maxim de utilizatori: | 2 |
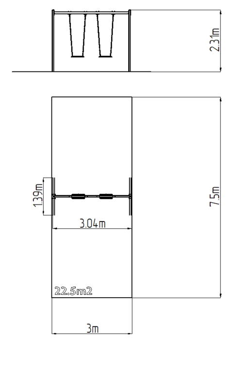
| Dimensiuni: | 3,04 x 1,39 x 2,31 m |
| Suprafață necesară pentru asamblare: | 6 x 7,5 m |
| Suprafață de amortizare la cădere: | Cauciuc sau pietriș 22,5 m2 |
| Standard: | ČSN EN 1176-1 ed.2 +A1:2024 ČSN EN 1176-2 ed.2:2018 |
Structura de susținere a leagănului este realizată din oțel structural, este zincată sau acoperite cu duplex strat de vopsea pe bază de pulberi întărite în conformitate cu RAL, pentru a preveni coroziunea și este fixată într-o fundație de beton.
Scaunul normal este confecționat din aluminiu, acoperit cu cauciuc moale și confortabil. Lanțurile sunt din oțel inoxidabil, ceea ce atinge o prelungire foarte importantă a vieții lor. Toate materialele de fixare sunt galvanizate sau sunt realizate din oțel inoxidabil.
Fără comentarii sau întrebări Leagăn cu lanț cu două locuri RH6211KR - roșu (înălțime liberă 1,5 m) privind acest produs. Nu ezitați să întrebați.
Fișă tehnică [170 kB, PDF]
cs
sk
de
en
hu
lt




