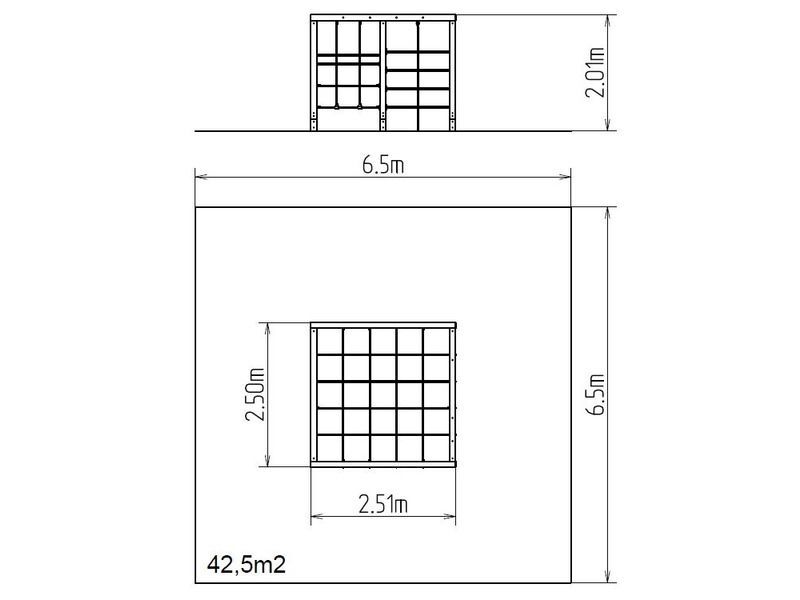
Produs - SSE-8612K-20
Set căţărare - metal
Solicitați prețul
Produs nou
Plasă de cățărare, bucle ale frânghiilor de legănare, scară suedeză, sfori de cățărare, 2 scară cu frânghii.
cs
sk
de
en
hu
lt


